• Piso en General Eguia (Bilbao) – Estilismo

    “Una vivienda más acogedora y cálida”

    Partíamos de una vivienda con tres dormitorios donde se decidió eliminar uno de estos para dar mayor amplitud al espacio de salón y poder hacer un gran comedor.

    5AC9EEBD-3EAC-4816-A21C-8787EFB8600D
    Vista general de la zona de relax
    0F3A0373-2E59-4ACE-B470-448975969903
    Vista general del comedor
    FE73FBA6-20EF-4407-94C1-9B3EF643BB53
    Vista general dela zona sofá

    Para aportar un toque de calidez y personalidad al espacio, incorporamos detalles en la gama de colores tierra y colores cálidos, además de pequeñas piezas y mobiliario auxiliar en negros y dorados.

    DFAC5572-9AE4-40D5-8B24-4BCB67211937
    Detalle del comedor
    5305FB04-72F4-41D3-939C-5E2DE17CAA3D
    Detalle de la zona relax
    ED44116A-E2C2-45A0-8B6D-45D84A88BC8B
    Detalle del sofá 

     

  • Vivienda Orduña – 80m2

    De una antigua vivienda con distribución tradicional, a un piso actual y práctico.

    Contábamos con hall, cocina, tendedero, salón, 3 dormitorios y 1 baño. Tras la modificación de distribución unimos la zona de hall con la cocina y el salón, creando un espacio semi-abierto, además de mantener los 3 dormitorios y ganar espacio para un segundo baño con ducha y bañera incluida.

    DSC_0177
    Vista general del salón, desde la zona de hall
    DSC_0197
    Vista general del salón
    DSC_0236
    Vista del salón, con la cocina al fondo
    DSC_0318
    Vista de la cocina, con el salón al fondo

    La armonía de color entre los espacios ayuda a unificar todas las zonas en una misma, creando sensación de amplitud y homogeneidad.

    DSC_0254
    Vista general de la cocina
    DSC_0261
    Vista del frontal de cocina

     

    DSC_0298
    Detalle de la zona de comedor en la cocina

    Para los baños, se optó por dejar uno con ducha, y el otro de forma alargada con ducha y bañera. 

    DSC_0345
    Vista general del baño 1, con cerámica estampada imitación hidráulico
    DSC_0363
    Detalle del lavabo, con toques en negro
    DSC_0390
    Vista del baño 2, zona de lavabo y bañera
    DSC_0423
    Vista del baño 2, zona de inodoro y ducha
    DSC_0432
    Detalle de la cerámica en la zona de bañera, Evoque Concept de Keraben

    Sin duda alguna, uno de los puntos de valor del proyecto, además de conseguir encajar en la planta los dos baños, fue la solución de espacio semi-abierto para la zona de hall-cocina-salón.

    Vista de las puertas correderas para separar la cocina del salón.

     

    ¿Qué te ha parecido este proyecto de reforma integral de vivienda?

    ¡A nosotros nos encanta!

  • Karisma, tienda de lanas, regalos y decoración | Una nueva imagen

    «Más espacio, amplitud e iluminación»

    ¡Dicho, y hecho!

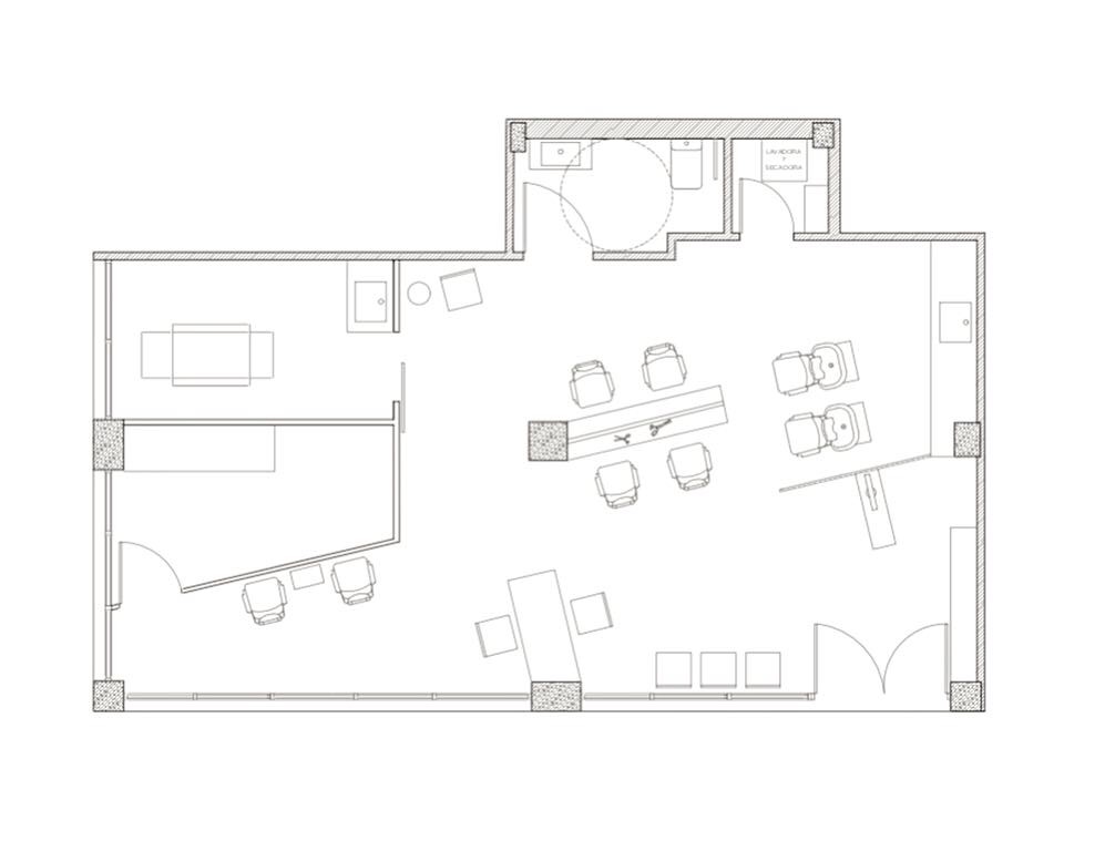
    Isabel quería ampliar la tienda, quitando un cacho del gran almacén y creando así más espacio para exposición de producto. Los principales ejes de venta son: lanas, artículos de decoración y hogar, y regalos y artículos infantiles y bebé.

    PLANO DE ESTADO ACTUAL      |   PLANO DE ESTADO REFORMADO

    Para ello desplazamos el tabique del almacén y ganamos una esquina desaprovechada para la tienda, creando la zona de lanas a mano izquierda, los artículos de hogar y decoración a la derecha y la zona infantil al fondo a la izquierda.

    El estado actual de la tienda era oscuro, con una iluminación inadecuada y mezcla de mobiliario de diferentes estilos y colores.

    Manos a la obra: ¡a reformar!

    IMG_8912
    Zona de venta de lanas
    IMG_8918
    Zona de venta de artículos de decoración y hogar
    IMG_8909
    Zona de venta de regalos y artículos infantiles / bebé

    Para dar mayor amplitud al espacio cogimos como base para techos y paredes el blanco roto (500N de NCS), que combinamos con mobiliario en blanco y alguna zona en color mostaza cálido. La puerta de acceso al almacén también la lacamos con el mismo color.

     

    IMG_8997
    Zona de venta de lanas
    IMG_8998
    Zona de venta de artículos de decoración y hogar
    IMG_9008
    Zona de venta de regalos y artículos infantiles / bebé

    La luz blanca (6000K) también ayuda mucho a dar luminosidad y amplitud al espacio, además de que hace resaltar y lucir más el producto de venta. Hemos colocado focos empotrados en unas planchas suspendidas del techo original.

    Ahora las zonas están mucho más definidas, los productos están bien expuestos y bien iluminados. En definitiva, un cambio radical que ha transformado la antigua y oscura tienda en una más amplia, luminosa y actual.

    IMG_9007

    ¿Qué te parece el resultado?

    Además, nos animamos a darle un cambio también al exterior. Hemos hecho una entrada accesible con rampa, revestida con cerámica Portobello de Keraben, y hemos pintado la fachada en marrón oscuro tipo wengué, combinado con un toque de mostaza.

     

    FACHADA: ESTADO ACTUAL   |      FACHADA: ESTADO REFORMADO

  • AIALA – Showroom de cerámica, baños y cocinas

    “Este espacio, con estos materiales y primeras marcas… había que enseñarlo”

    Estado anterior de la exposición

    AIALA S.A. en Amurrio (Pol. Aldaiturriaga) quiso dar un cambio a sus oficinas y showroom, creando un espacio más amplio y actual donde poder mostrar sus mejores productos de materiales de construcción, cerámica y baños, y ahora también cocinas.

    564F5939-5364-482D-8128-F0A3286DB8A2
    Vista de la zona de baños
    C800FA8A-E369-4A1B-B5D0-938CEF28562B
    Vista del escaparate, zona baños
    ABFCB311-C2BD-467E-A343-2A8807943D64
    Showroom de baños
    7FC7D897-93A8-4614-A660-1A86F3493ACD
    Vista de la zona de cerámicas 

    Decidimos centrarnos en la distribución de los productos, creando una zona de construcción, zona de baños, zona de cocinas y zona de cerámica.

    855E940A-C951-4FF5-B8B6-503213760545
    Vista de la cocina de exposición 
    77579EA9-D11A-458B-AB55-5AAB4536CB8E
    Vista del escaparate, zona cocinas

    Además mejoramos todo el sistema de iluminación utilizando luz blanca (6000K) para dar importancia al producto.

    20B651BA-0E40-4AED-87D9-83F1A37AC583
    Foto de la colocación de nuevas luminarias en fase de obra

    ¡Recuerda, si necesitas asesoramiento en materiales de construcción, cerámica, baños y cocinas, no dudes en pasar por AIALA!

    Siempre con las mejores marcas: Keraben,  Ragno, Ape Grupo, Tejas Borja, Weser, Nuovvo, Roca, Yurba, Tres Griferia, Laminam, Dekton… y muchos más.

  • Abascal, nueva imagen para esta tienda de moda

     

    “Una imagen fresca y actual. Y más luz”

    La tienda de Moda Abascal en Amurrio necesitaba un cambio de imagen. Dejar atrás el antiguo suelo de terrazo y mobiliario en madera oscura, y darle un nuevo aire con suelo de madera laminada acabado roble y blanco para paredes y techos.

    Se ha adaptado el acceso con una rampa, y se ha eliminado el escaparate derecho para abrir todo el espacio a la tienda, dando así mayor iluminación natural al interior y amplitud al espacio.

    B5A34383-FE1E-4C65-BCB0-40F328A13801
    Vista frontal de la tienda
    CAAC9F87-E17B-47C6-A096-346EED0134C0
    Vista de la zona mostrador

    Uno de los principales cambios fue adaptar el mobiliario y crear así 2 zonas de paso con expositor de producto a cada lado y en la isla central, facilitando así un recorrido continuo por la tienda.

    AA37BCCE-4F9C-42AC-B094-C0DB7AA64DCC
    Vista general de la tienda con las 2 zonas de paso a cada lado
    96AAD5A9-6261-495F-AF68-8AFCEE03E4BC
    Vista de la zona de acceso y apertura del escaparate
    08301FF9-5BA1-4CBB-BEA6-DA23F9D83BE5
    Vista de la zona del fondo de lámparas tienda, con isla central

    La iluminación ha sido el punto final del proyecto. Las antiguas fluorescentes se han sustituido por lámparas de LED y focos orientables LED, dando protagonismo al producto, con una luz de color natural.

    2AD12EB0-6BE5-45BC-BF6E-1788F645CB63

    Imagen del fotomural de la zona de mostrador

    …y para rematar, un toque muy nuestro. Un maravilloso fotomural en colores rosas y estampado floral en la zona de mostrador.

    ¡Pásate a verlo en c/Dionisio Aldama 2, en Amurrio!

  • BAI BADA! Papelería tienda-taller

    Proyecto de Obra y Actividad para la legalización de una tienda-taller de papelería y fotocopistería en Amurrio.

    6B7FD7F4-BB87-4397-BC45-301DF74B44AE

    Ana nos pidió ayuda para tramitar la legalización de su proyecto: una papelería con zona de tienda y zona de taller. En AD Interior Design nos ocupamos de la tramitación de la licencia del Proyecto de Obra y el Proyecto de Actividad.

    ¡Nos encanta ver y ayudar a crecer al comercio local!

    BAI BADA! c/ José Medinabeitia 8, Amurrio

  • Reforma de Viviendas en Casco Antiguo

    De una antigua vivienda, sacamos 2 nuevos pisos modernos con espíritu rústico.

     

    La vivienda está en el Casco Viejo de un pueblo Bizkaino, en un edificio que data de mediados del siglo XIX, con una planta semirectangular, con muros de carga laterales de piedra, fachadas delantera y trasera de ladrillo y estructura de madera. Estaba muy deteriorada y desaprovechada por su distribución interior.

    Orruño6-1-04_page-0001
    Propuesta en plano de la distribución de los 2 pisos
    3D357D40-45FC-4E15-AA0B-848B587108C1
    Propuesta 3D de la distribución de los espacios

    Propusimos hacer dos viviendas simétricas, de unos 90m2 cada una, con 3 dormitorios, 2 baños, y zona amplia de cocina-salón y comedor.

     

    Imágenes del proceso de obra: demoliciones, albañilería, instalaciones, carpintería, acabados

    La parte pública (cocina-salón-comedor) orientada hacia la calle principal, con 2 balcones de 140cm de ancho libre en cada vivienda. Además se reconstruyó la fachada de ladrillo caravista rústico por el interior.

    La parte privada (dormitorios) se orientaron hacia la fachada trasera (2 de ellos) y hacia el patio (el otro).

    IMG_4513
    Visa general de la zona de salón-cocina
    IMG_4521
    Vista general del dormitorio principal
    IMG_4526
    Vista general de la entrada
    IMG_4528
    Vista general de la entrada y la zona de comedor

    El estilo es actual, colores claros con paredes y techos blancos, y suelo laminado en tono taupé, dando protagonismo a la estructura original de la vivienda de pilares y vigas de madera, con una tintada en roble oscurecido.

     

    Detalle de la estructura de madera vista en dormitorios
    IMG_4524
    Vista del pasillo, con la pared de ladrillo al fondo y los pilares de madera vistos

    El resultado: ¡IMPRESIONANTE!

  • VISIA estilistas | Una peluquería en Amazonia

    «Una peluquería muy cálida y actual»

    Joana quería montar su propio salón de peluquería y belleza. Sus necesidades eran un espacio amplio con 3 tocadores, lava-cabezas, zona de tinte, recepción y zona de espera; y aparte una pequeña sala de cabina estética, un pequeño office privado y el aseo.

    El antiguo local era una tienda fría, impersonal y sin aseo adaptado, por lo que la obra fue una gran aventura.

    Ella quería un espacio cálido y acogedor, y por supuesto, diferente al resto. Le gustaban los elementos naturales, la madera, la piedra, y la vegetación.

    F977AD39-FDAB-4EEE-8EC5-A1F781D1EAAD
    Imagen frontal con el gran foto-mural de Amazonia

    Desde el principio teníamos clara nuestra idea base: Amazonia, la selva tropical de la cuenca del río Amazonas. 

    9509B882-359F-4FBA-97BD-AA2E1D64182E
    Vista de la zona de tocadores
    9C5FD481-E49A-4585-A5AC-5C2D1FCADD2E
    Vista de la zona de venta y mostrador
    AB1525D2-C83D-43A8-B727-97EDA3FD9A54
    Vista de la zona de lava-cabezas y tinte

    Diseñamos un espacio cálido y actual, con nuevos suelos cerámicos imitación madera de la marca Ragno, colores cálidos, mobiliario de peluquería de Seap Proyectos, mobiliario de ebanistería a medida en acabado pino blanqueado y gris antracita, materiales como el ratán y el mimbre para elementos decorativos.

    Por supuesto, la pieza más importante del diseño: un foto-mural de gran formato para representar la selva tropical es su estado más vivo.

    CC569AB8-2C2A-41AF-9A8D-D8E1B336FD31
    Lado derecho
    2C155BCE-1665-4A2B-A22D-A710EA9C38A8
    Lado izquierdo

    ¿Qué os parece el resultado?

    Todo el Proyecto de Obra y el Proyecto de Actividad ha sido desarrollado por AD Interior Design, junto con el proyecto de Diseño y la elección de cada acabado, detalles que han hecho único y especial este proyecto.

    29092797-6987-4333-8B74-D6A16F42A927
    Vista de la zona de espera
    D949C33D-DDB2-44B3-8F30-DDF6277F76D7
    Detalle del mostrador
    5A6A46CE-4CCF-4842-9614-D3319CFAA80F
    Vista de la fachada renovada

     

  • Peluquería Spiral

    ¡Terminamos el 2018 con fuerza e ilusión!

    Tras 21 años en su antigua peluquería, Lorena decidió dar un cambio a su local. Lorena no buscaba diseño, no buscaba decoración, no buscaba un estilo… buscaba, o mejor dicho necesitaba, ILUSIÓN.

    “Estado actual de la peluquería”

    Desde AD Estudio nos pusimos manos a la obra para devolverle la ilusión y las ganas de volver a retomar con más fuerza que nunca su trabajo, al que le ha dedicado gran parte de su vida.

    ¡Agárrate Lorena, que vienen curvas!

    La nueva propuesta era hacer del espacio una zona más abierta, dividiendo principalmente el salón de peluquería en 2 zonas: zona de tocadores y zona de lavacabezas y boutique.

    “Propuesta 3D de la nueva Spiral”

    Los tocadores quedaban orientados hacia la vía principal, mientras que el lavacabezas y la zona boutique (junto con el almacén y el aseo) quedaban orientados hacia la vía secundaria.

    ¿Lo diferente y especial en el proyecto? LAS CURVAS

    3BCFE309-BB6B-4046-8931-1B99BB435C1A
    Propuesta de la planta, tabiques curvos y distribución

    Decidimos dar un toque de distinción y elegancia al espacio, creando un diseño con lineas curvas combinadas con planos más rectos, para integrar el arco central de la antigua peluquería, que fue el único elemento que decidimos dejar tras la reforma.

    Elegimos acabados sofisticados, cada pieza al detalle, cada zona con un ambiente… el brillo, las perlas, el metal, los estampados florales… todo ello creó un espacio lleno de armonía y buen gusto.

    6582B48D-4199-4AF9-B9B5-773C3F9200569F23416F-D38A-483C-8180-F609AFF9FDA0ACFB74F9-16CA-452A-A2E1-8E35C15B6C5E

    Los colores elegidos fueron tonos fríos, desde blancos hasta grises oscuros, todos ellos en la misma gama de gris, y el mobiliario y otros elementos en blanco y en negro.

    En contraposición a las curvas creamos el espacio del lavacabezas, un gran mural floral que nos inunda pared y techo sobre una estructura recta en L, lo que hace enfocar las miradas en el lavacabezas con apoya-pies eléctrico del salón.

    9A04F7FD-1764-4EA1-95A4-EDCD278F042D
    Lavacabezas de CimaBeauty

    Las butacas con pedrería son de Codisarpel, la gran butaca de barbero de Seap Proyectos y el lavacabezas de Cima Beauty.

    0C6B4D93-8226-4503-993E-21AB2829193C
    Butaca de Barbero de Seap Proyectos
    2C44B2DA-57AF-4598-933E-8ABF8C0D7469
    Butaca de Codisarpel

    ¿Qué te parece el resultado final?

    E273025F-5F18-4761-AA8C-860FCA350DA5
    Tocadores curvos

     

  • IF | hair, beauty & nails

    “Un salón de belleza único y muy personal”

    Izaskun Fanarraga se animó a emprender y abrir su propio centro de peluquería e imagen. Quería un espacio actual, acogedor y espacioso.

    En AD Estudio le ayudamos primero escogiendo un local que se adecuaba a sus necesidades, y le desarrollamos una propuesta a su medida, con espacio de peluquería, maquillaje, cabina estética y manicura, siguiendo sus propias indicaciones en cuando a gustos y preferencias.

    3D02097E-033B-4307-9F01-B1E2F2D0B2BE
    Plano de la planta

    Propusimos girar los planos en planta, de este modo conseguimos crear recorridos de circulación interiores más prácticos y conseguimos a su vez orientar los planos hacia la vista exterior desde la vía pública (c/Landako 6 – Amurrio)

    Representamos la propuesta en 3D, para explicar mejor el concepto de los planos inclinados y poder empezar a ver colores, acabados y materiales.

    Fondo gris, toques con verde/turquesa y detalles en negro. La composición final no nos puede gustar más.

    B097ECFE-B08E-4B08-82D6-CC4F2301A270F0B52A53-628C-4D4E-B4DE-F4F2A4AA6B814570624F-7D6A-4AEC-9A95-7E74B468BEEF

    Las butacas y lavacabezas son de Seap Proyectos, y el mobiliario a medida diseñado por nosotros.

    Una conposicion llena de detalles, con mucho estilo AD, y mucha personalidad de su propietaria Izaskun.

    6FE6B3C2-8312-4CE0-8B4E-C043473521616674FDD6-CDAA-418C-9F19-DBF3BEFE480C39345F0C-1DF4-4C8E-958D-990ADB6FC6FFBD38FA00-A24B-4332-9F0D-B7098DE27A659465847A-3142-493B-9FFF-96E456AB9464

    ¿Que te parece el resultado?

    FD6137DE-0081-4F22-A9B4-BFE44276648C

    Todo el proyecto de actividad y proyecto de diseño por AD Interior Design, junto con la dirección, coordinación y contratación de obra.

    ¡Esperamos os haya gustado!