• Diseño de Escenario: Pausu Doinuak

    «Un proyecto creativo y original. Decorar el escenario para la ocasión»

    Pausu Doinuak fue una gran actuación de música y danzas organizada por las agrupaciones de Amurrioko Musika Eskola, Trikitixa Eskola y Aiara Dantza Taldea. Había que contar una historia mediante las danzas de diferentes zonas de Euskal Herria, cambiando de paisaje y de entorno para cada fase de la actuación, pero todo en unísono y armonía.

    2018_Amurrio_Aiara Dantza Taldea_Pausu doinuak20180224_0167_content
    Foto de la actuación: Fase 4, Pueblo alavés. De Maddi (Aiaraldea.eus)

    En AD Estudio, creamos la zonificación del escenario según necesidades de los participantes, y diseñamos una decoración acorde con el evento. Un entorno ligado al mar, una zona costera de Ipar Euskal Herria, una zona rural ligada al vino y a la Rioja Alavesa…

    ANTZOKIA_SOINUDOINUAK1-001 (1)
    Plano de zonificación y organización

    Mediante el diseño del escenario en 3D, hicimos una recreación del escenario y sus fases, y un vez aprobado el diseño, nos pusimos manos a la obra con la ejecución del proyecto.

    Amurrio Antzokia Aiara Dantza Taldea
    3D del diseño. Fase 4

    Además, nos encargamos de todo el atrezo del escenario, así como del montaje y desmontaje de todo ello.

    2018_Amurrio_Aiara Dantza Taldea_Pausu doinuak20180224_0194_content
    Foto de la actuación: Fase 1, El mar. Foto de Maddi (Aiaraldea.eus)

    ¡Una experiencia única y muy enriquecedora!

     

    Fotos de: Maddi I. (más fotos en Aiaraldea.eus)

    https://aiaraldea.eus/amurrio/1519751301591-aiara-dantza-taldeak-amurrio-antzokiko-oholtza-koloreztatu-zuen

  • Proyecto de Obra y Actividad: Tienda de moda

    Además de proyectos de diseño, en AD Estudio también hacemos Proyectos de Actividad para locales comerciales.

    Esta semana, hemos hecho el proyecto de obra y actividad para un local comercial, con proyecto destinado a comercio de venta al por menor de moda mujer y complementos.

    IMG01-001 (1)
    Planteamiento general de un proyecto de actividad

    Redactamos planos y memoria de actividad, bien sea nueva actividad, cambio de actividad o legalización de actividad existente.

    Además, si fuese necesario, hacemos también proyecto de obra para presentar en ayuntamientos para cualquier modificación de distribución, instalaciones y/o acabados que se realicen en el local.

    p05 (2)-001
    Plano de instalación eléctrica y PCI

    En este proyecto hemos redactado los planos de estado actual y estado reformado, puesto que se han llevado a cabo pequeñas modificaciones, y hemos completado con planos de instalación eléctrica e iluminación según necesidades del cliente y plano de Protección Contra Incendios según Normativa.

    ¡Si necesitas un Proyecto de Actividad para la instalación de tu futuro comercio, contáctanos, te ayudaremos en esta gran andadura del emprendedor!

     

  • Proyecto de obra y actividad: Barbería

    La dificultad de emprender y la ilusión del emprendedor. Dos conceptos que chocan pero que siempre, siempre, llevan a buen puerto. Aunque no consigamos nuestras metas, no podemos dejar de intentarlo. El sueño de un nuevo cliente: ¡montar su propia barbería!

    02-001 (1)
    Planta del estado reformado del local: Barbería

    Un pequeño local (bueno o no tan pequeño), unos ahorros, muchas ganas y la ayuda de un técnico cualificado. Ahí entramos AD Interior Design. Hemos redactado el Proyecto de Obra y el Proyecto de Actividad para este comercio de Barbería en Amurrio (Álava).

    Barbería 3D 04
    Vista general de la barbería en 3D

    Una vez redactada la documentación necesaria para la licencia de apertura del local (memoria de actividad, de obra, planos, CTE, otras normativas…), hemos hecho unos 3Ds de lo que quiere el cliente, con el fin de facilitar el duro proceso de emprender y poner nuestro toque de diseño como firma final del proyecto.

    Porque está claro, un buen diseño, vende más.

    Barbería 3D 01
    Vista de la zona de trabajo en 3D

    El presupuesto de decoración y equipamientos es reducido, pero nos hemos adaptado a ello y no solo eso, también hemos dado trucos e ideas al cliente para decorar y amueblar con poco presupuesto.

    Barbería 3D 03
    Vista de la zona de espera en 3D

    Y tras 1 mes de obras… el resultado:

    IMG_3235IMG_3237IMG_3228

    IMG_3226
    Fotos del resultado final, ¡nos encanta!

    ¡Esperemos que vaya todo genial!

     

     

  • Akeita Kafetegia, una cafetería más acogedora

    «Queremos que el bar sea un espacio más cálido y acogedor»

    Esto era lo único que pedían los propietarios del local. Un local reformado hace 5 años, pero con un estilo frío y nada acogedor; además, estaba mal aprovechado el espacio útil.

    El primer handicap, teníamos 14 días para desarrollar el proyecto y llevar a cabo la ejecución del cambio. ¡Una obra exprés con 7 días festivos entre medio!

    La idea: modificar la iluminación, el mobiliario, y la decoración en techos y paredes.

    IMG_7308
    Vista general del local, planta baja

    Aclaramos los techos, haciendo un juego geométrico en 4 tonos. Empapelamos algunas paredes, colocamos unos vinilos en otras, y por supuesto, creamos una nueva iluminación. Dos ambientes diferentes mediante luces cálidas y luces más frías, con iluminación indirecta y directa, todo ello regulable.

    IMG_7286
    Jardín vertical en la 1ª planta
    IMG_7303
    Rincón acogedor con sofá y zona de jardín en el hueco bajo-escalera

     

    Incluimos mucha vegetación, con zona de jardín bajo escalera, jardín vertical en la 1ª planta, y grandes maceteros a medida llenos de vegetación. Todo ello para crear una composición cálida y natural.

    El anterior diseño era frío y poco acogedor, materiales y acabados metalizados, hormigón, brillo… una composición quizás mas enfocada al mundo de la noche que a una cafetería.

    En la nueva propuesta jugamos con la luz y el color, para demostrar que con poco tiempo y poco presupuesto se pueden hacer grandes cambios.

    ¡Esperemos que os guste el resultado tanto como a los propietarios! Un buen diseño y un trabajo profesional se nota en este tipo de «lavados de cara exprés».

     

     

    IMG_7311
    Vista general de la planta baja, destacan las jardineras a medida de madera de zebrano con la luz indirecta detrás, y las lámparas decorativas en las jardineras a modo de vegetación.
    IMG_7315
    Vista del rincón con asiento a medida de zebrano y tapizado en azul turquesa. Destaca la iluminación indirecta que sale del friso e ilumina el papel pintado de estampado superior.
    IMG_7322
    Vista de una de las antiguas mesas, «restaurada» con tablero superior de zebrano. Detrás los vinilos en las zonas bajo-ventana.
    IMG_7326
    Vista de las jardineras, con plantas artificiales e iluminación decorativa ambiental.
    IMG_7344
    Vista de la 1ª planta, con nuevo mobiliario, mesas «reformadas» y el gran jardín vertical detrás.

     

     

     

     

  • Taberna Frontón, una nueva imagen

    «Queremos darle una nueva imagen a la Taberna,
    más actual y atractiva para nuestros clientes»

    Así es como los propietarios de la Taberna Frontón me pidieron realizar este proyecto. No tenían ninguna preferencia en cuanto a estilo, materiales y/o acabados. Solamente querían que el bar pareciese nuevo, y que yo supiese sacar el mayor partido de lo que teníamos. Eso si, ¡me daban 10 DÍAS para hacer toda la reforma!

    IMG_6937
    Nueva imagen de la Taberna Frontón

    La antigua imagen del bar, estaba inspirada en el frontón y el deporte de la pelota vasca, con colores fríos como verdes y marrones, y luz cálida. Todo ello hacia un espacio oscuro y pequeño. Además, el mobiliario en negro no ayudaba.

    El suelo con baldosa rústica, el friso de pino en todas las paredes del local… Desde el principio teníamos claro lo que había que hacer.

    4
    Vista 3D del diseño para el nuevo bar

    Primero, ocultar ese suelo antiguo y desgastado, y después, comenzar con las paredes: quitar el friso de pino (o en su defecto, lacarlo en color blanco o claro), pintar los techos de blanco, poner un mobiliario más cómodo y acogedor… y para terminar, cambiar la iluminación.

    IMG_6910IMG_6916IMG_7008

    El resultado: una cafetería acogedora y actual. Los suelos con revestimiento cerámico de Ragno imitación a madera de roble, paredes en blanco con alguna zona alicatada en azulejo tipo retro de Ape y alguna otra zona empapelada (para dar algo de color), los techos en blanco, el mobiliario cómodo y acogedor, y la iluminación en dos fases, por un lado una parte más cálida para la zona de barra, y por otro lado una luz más blanca en la zona de bar, dando así amplitud a la estancia. Además, se han utilizado espejos para dar sensación de más espacio interior.

    IMG_6919IMG_6920IMG_6922

    Los aseos no se cambiaron, aunque si se aprovechó para pintar y cambiar el suelo. Además, se les dio un toque de color con unos vinilos muy animados.

    Por el exterior, revestimos la fachada hasta 1m de altura y pintamos el resto, como colores fríos y sobrios como el blanco hueso y gris antracita, una combinación de 10.

    IMG_6999
    Gustó tanto la fachada, que decidieron continuar hasta la parte de fachada del portal del edifico.

    En definitiva, ¡una rápida reforma con resultado de inmejorable!

    IMG_6939
    Vista de la zona de bar de la nueva Taberna Frontón

     

  • Estilismo para zona de recibidor

    «Un espacio luminoso y con energía, y muuuucha personalidad»

    Estos clientes lo tenían claro, no querían para nada una entrada normal en su hogar, querían algo único y personal. Obviamente, eliminamos el gran mueble-espejo de la entrada y quitamos todo el gotelé en amarillo.

    IMG_4324
    Estado pre-reforma

    Así, decidimos empapelar toda la zona de entrada y recibidor de la vivienda, para lo que elegimos dos papeles pintados: uno en gris perla con brillos y el otro en rosa con textura efecto textil.

    Pero esta composición, nos parecía muy común, así que para darle mayor personalidad y vida al espacio, decidimos colocar un gran fotomural en una de las paredes de la entrada. Escogimos una imagen tamaño grande de la flor preferida de la clienta, la orquídea, sobre fondo de tonos grises.

    IMG_5737IMG_5752

    El resultado no puede ser mejor, un espacio muy luminoso y con mucha vida, para animarnos cada llegada a casa todos los días del año.

    Para el mobiliario, una cómoda de madera en negro, con encimera de madera natural, y dos espejos circulares dorados de plumas, aportando elegancia y seriedad a la composición.

    IMG_5749

  • BAÑO | ¡Lavabos para todos!

    Estilo moderno, clásico, rústico, vintage… es simplemente la elección de la línea que sigue un diseño, pero además de todo eso, hay que tener en cuenta la utilidad y funcionalidad del diseño.

    Por eso, en AD Estudio, nos centramos en buscar el mejor diseño en cuanto a práctico y útil para cada cliente, adaptándonos al estilo general y gustos de este y de la vivienda, y orientando siempre en positivo para ofrecer la mejor solución.

    Un baño, y en especial la zona de lavabo, será zona de uso continua durante más de una vez al día, por lo que tenemos que elegir siempre un diseño funcional, sin olvidar el estilo.

    IMG_2220
    Baño estilo Vintage, por AD Interior Design
    IMG_2226
    Baño estilo Moderno-Clásico, por AD Interior Design
    IMG_2266
    Baño estilo Moderno-Chic, por AD Interior Design
    IMG_2268
    Baño estilo Industrial-Chic, por AD Interior Design
    IMG_2274
    Baño estilo Juvenil, por AD Interior Design

    Lavabos más alegres con colores vivos, más serios y elegantes con beiges y maderas, más fríos en blanco y negro…

    En AD Interior Design, te ayudamos a hacer realidad el baño de tus sueños, con el fin de que puedas disfrutar de este pequeño gran espacio de tu hogar.

     

  • Pasarela Primavera 2017 – APYMCA

    «Es primavera, pero no caigamos en el tópico de las flores»

    1
    Modelo 3D del diseño

    Con intención de animar el desfile de moda primavera-verano de los comercios de Amurrio, la asociación de comerciantes Apymca decidió contactarnos para diseñar el decorado del teatro Antzokia. Querían una propuesta fresca, que diese luz al oscuro escenario y un poco de color para animar a los/las modelos.

    17761101_1432245976850128_8928054352256738190_o
    Vista del escenario con la Presentadora del evento Iratxe Estrada, de Iratxe Estrada Comunicación. Fotografía de Txerti Foto.

    Decidimos representar la primavera como más nos gusta, plasmando las actividades del tiempo libre en esta estación del año: El mar y La montaña.

    Unos arrecifes de coral en color blanco, con unos coloridos peces de origami revoloteando entre algas y anémonas, sirvieron para exponer el mar, el agua, la playa… y unos árboles blancos al fondo, con coloridas grullas de origami volando sobre el escenario, recrearon el bosque, la montaña. Una gran exposición de la naturaleza y el encanto del natural de nuestra tierra. Mar y monte en un mismo espacio.

    IMG_0115.JPG
    Vista completa de la pasarela terminada.
    IMG_0107.JPG
    Vista lateral de la pasarela terminada.
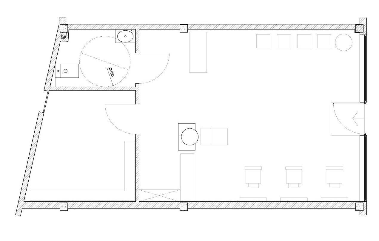
  • Clínica de Fisioterapia

    Lo duro y lo difícil de emprender, ante la ilusión del emprendedor.  

    Una joven emprendedora soñaba con montar su propia clínica de fisioterapia, y contactó con AD Estudio para llevar a cabo la obra.

    Nosotros nos encargamos tanto del Proyecto y Dirección de Obra, como la contratación y coordinación de los gremios, además de realizar el Proyecto de Actividad para el local comercial y gestionar los permisos y solicitudes de licencia. El objetivo es que este duro camino sea un poco más sencillo para todo emprendedor ilusionado.

    03
    Vista superior de la propuesta

    Tras hablar con la clienta y asesorarla en la elección del local para la futura clínica, comenzamos a trabajar en el proyecto. Buscamos un diseño sencillo y práctico en su día a día, ajustándonos a la normativa vigente en este campo y cumpliendo con las necesidades de la propietaria. Una recepción, un aseo, una sala de consulta y otra sala de tratamiento.

    Si algo nos tiene que transmitir el campo de la sanidad es higiene en sus instalaciones, seguridad y tranquilidad. Por ello no es aconsejable poner colores fuertes, ni colores muy cálidos, y hay que procurar meter materiales limpios y continuos.

    Optamos por unos colores muy de clínica. Para las salas de tratamiento, verde quirófano tirando más a turquesa, y gris perla que trasmite tranquilidad y pureza; y para la recepción además añadimos el gris antracita, que transmite elegancia y calidad.

    13

    La madera, como siempre, presente en nuestros proyectos. Es un material cálido para un lugar en el que la gente puede estar descalza o con poca ropa, además de ser un material limpio y elegante.

    3D exterior del estado actual y la propuesta

    Por el exterior también optamos por cambiar por completo el diseño del local actual, con el fin de aprovechar la luz natural en el interior y a su vez crear un diseño moderno y de líneas limpias en su exterior.

    FOTOS DEL RESULTADO FINAL:

    5CB6BBC3-63EC-4FE0-A6F1-8F6326CDE82A
    Resultado final: zona de hall
  • Escaparate Azules 2017: Primavera

    ¡Se asoma el buen tiempo!

    Nada mejor para anunciar la primavera que el color, ¡mucho color! Y es que en estos tiempos tan difíciles para el pequeño comercio, aquí seguimos algunos decorando escaparates y fachadas, con el fin de animar y alegrar la vista a los viandantes. Como dice el lema de esta primavera: «Podrán cortar las flores pero no podrán detener la PRIMAVERA»

    La fachada decorada con frutas y vegetación, toda la composición con colores vivos.

    17264256_1253783361395744_8659292798513008829_n
    Imagen del interior con más frutas y flores
    unnamed (12)
    Detalle del interior lleno de pétalos de rosa

    La idea fue representar la primavera desde el punto de vista de Pablo Neruda, con alegría y colorido, pues aunque las flores estén arrancadas la primavera seguirá su camino, los árboles seguirán floreciendo y dando sus frutos al fin.

    unnamed (11)
    «Podrán cortar las flores, pero no podrán detener la PRIMAVERA»

    Unas lluvia de flores cortadas y pétalos sobre el jardín de frutas y color donde se exponen algunos de los productos de Azules, en Amurrio.