• Reforma de vivienda en Gasteiz

    «Haz que el espacio sea útil, queremos sacar partido de todos los metros cuadrados»

    Los clientes lo tienen claro, quieren sacar partido a este piso en la capital alavesa. La distribución actual desperdicia gran parte del espacio útil de la vivienda, además la antigüedad del mismo junto al mal estado de sus instalaciones y su «decoración» no ayudan para nada.

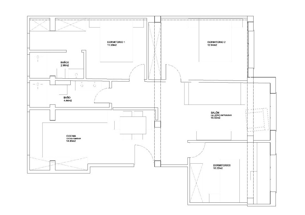
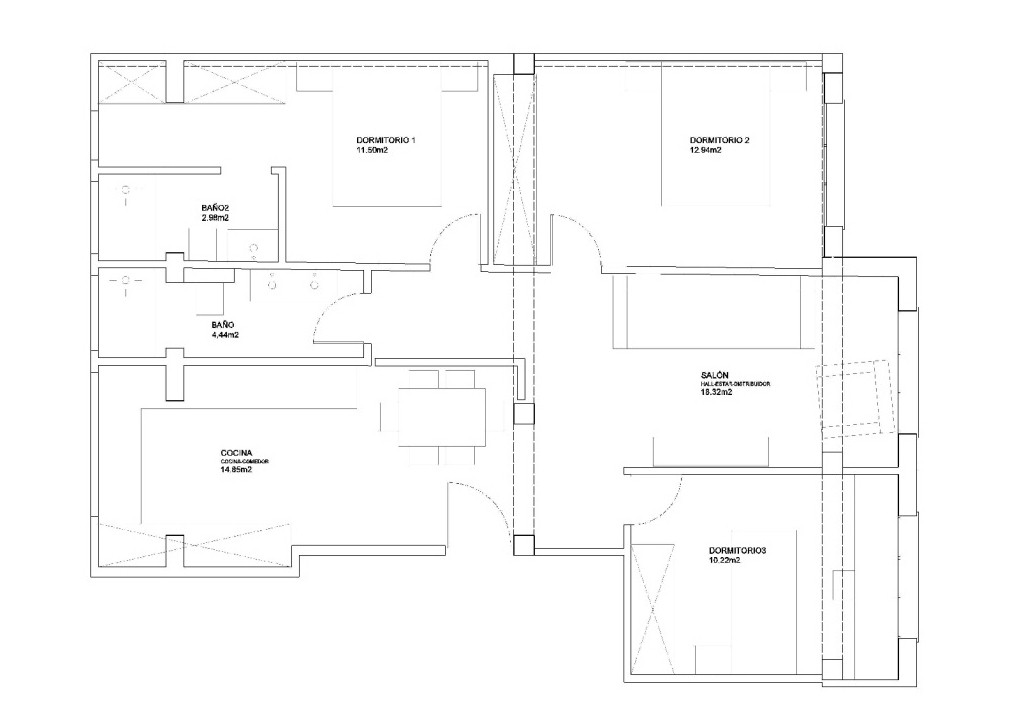
    La vivienda cuenta con 3 dormitorios, una cocina, un pequeño salón y un baño; y tiene un balcón cerrado de casi 7m2 que está inutilizado.

    01
    Planta actual de distribución de la vivienda

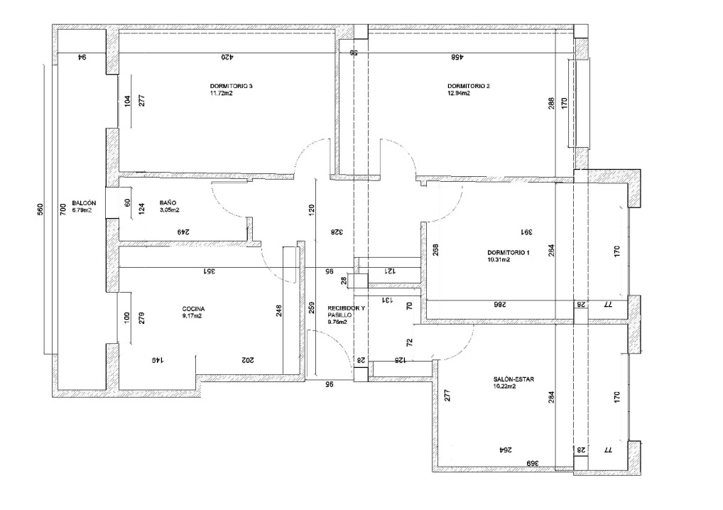
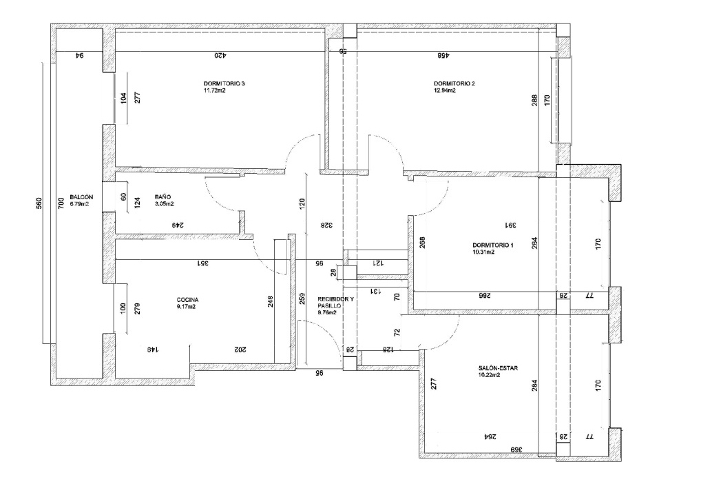
    Se propone como solución coger el espacio útil del balcón y añadirlo a la vivienda, dando amplitud a los espacios del lado izquierdo de esta; así, conseguimos un espacio más donde poder incorporar un segundo baño, revalorizando considerablemente el valor del piso.

    También se propone pasar el salón al espacio del dormitorio 1, y a su vez abrir este espacio, uniéndolo a la zona de entrada, y a la cocina-comedor, creando todo un espacio abierto de lado a lado, lo que dará mayor amplitud y luminosidad a la zona pública de la vivienda. Todo ello evitará desperdiciar el espacio actual de recibidor-distribuidor de la zona central de la vivienda.

    02
    Plano de propuesta de distribución de la vivienda

    La vivienda quedará más útil y mejor aprovechada, sumando al proyecto un baño completo y ampliando la zona pública de salón-entrada-comedor-cocina.

    Se modificará el sistema de calefacción, instalación general de fontanería, instalación de electricidad e iluminación y acabados y revestimientos como suelos, paredes y techos.

    Se propone hacer una vivienda mas actual y luminosa, un espacio listo para ser habitado.

    Muy pronto más sobre este nuevo proyecto…

  • Vintage VS Retro – Diseño de Baño

    Una de las grandes dudas del estilo «vintage» que tanto se lleva ahora…
    ¡Es que ya todo es vintage!

    Uno de los principales errores que comentemos en el mundo del diseño son las nomenclaturas. Parece que todos sabemos de todo, y todos tenemos estilo, seguimos la moda, y entendemos de tendencias. Estilo son el conjunto de rasgos que caracterizan algo, de ahí que sea de un estilo u otro. Moda son el conjunto de gustos de un periodo determinado, haciendo alusión al gusto actual normalmente, de ahí que algo pueda estar hoy de moda y mañana no. Tendencia, es sinónimo de moda, siendo el conjunto de gustos de un periodo determinado, aunque esta si hace alusión tanto a periodos actuales (hoy es tendencia) como a periodos pasados (la tendencia de la década pasada).

    Una vez explicado esto, pasamos a «la fase2». Vintage y Retro. Coger estilos de tendencias pasadas se ha puesto muy de moda, y es que estamos volviendo a hace 40-60 años respecto a lo que la decoración se refiere. Cada vez son más las marcas que apuestan por estas lineas, dejando atrás el frío estilo minimalista, el industrial, el clásico o romántico, o incluso el nórdico.

    Hemos diseñado una propuesta de reforma de baño para unos clientes, los cuales pedían una propuesta vintage. Azulejos pequeños, grifería clásica, colores neutros…

    10
    Vista en planta de la propuesta vintage

    Las opciones de distribución no son muchas, así que siguiendo los gustos y necesidades de los clientes hemos realizado esta opción, con azulejo tipo «merto Londres», baldosa hexagonal en grises para el suelo a modo «nido de abeja», perfilería de ducha y mueble en negro y griferías en bronce o latón viejo.

    Una propuesta divertida y original… pero «parece viejo» según los clientes.

    El estilo vintage hace referencia a unos elementos que fueron de una época y que ahora se vuelven a llevar, obviamente son elementos nuevos todos, pero que imitan en forma, tamaño, acabados e incluso material a los originales de hace años.

    Si lo que buscamos es darle este «estilo» pero dentro de un ambiente moderno, buscamos una opción retro.

    09
    Vista en planta de la propuesta retro

    Hemos escogido unos azulejos en tonos claros y tonos crema, de dimensiones 20x60cm, con una zona en torre de azulejos decorativos, perfilería de ducha y grifería en cromado y mueble de lineas actuales de melamina y metal.

    Una propuesta moderna y actual, con un aire a antiguo.

    El estilo retro hace referencia a unos elementos modernos y actuales que siguen el estilo de una tendencia pasada, pero adaptado a las nuevas formas y los nuevos materiales.

    Y a ti, ¿que opción te gusta más?

    Fotos de la reforma:

    IMG (32)
    Panorámica del baño terminado ¡Nos encanta!

     

  • Stands Feria Bilbao Mueble 2017 – Hukla y Somicat

    Los días 19, 20 y 21 de enero tuvo lugar la Feria BilbaoMueble 2017 con su primera edición en el BEC (Bilbao Exhibition Centre). AD-estudio estuvo muy presente, no sólo cogiendo nuevas ideas del sector del hábitat, si no también en el diseño y ejecución de varios de los stands del evento. Además de formar parte del equipo de diseño y ejecución del stand del Colegio Oficial de Decoradores y Diseñadores de interior de Bizkaia, también llevamos acabo los espacios expositivos de las empresas Hukla Germany y Somicat SL.

    Hukla Germany

    La empresa alemana, con sede en Barcelona, acudió al evento con una gran gama de sofás y camas. La idea del espacio estaba clara: una zona abierta donde exponer su producto y una pequeña zona de almacén con barra tipo bar. Por parte de AD Interior Design, optamos por poner una gran torre con los logotipos de Hukla y O’luxen, para poder identificar el espacio desde diferentes puntos del pabellón.

    4
    Diseño final en 3D

    Tras varias opciones, llegamos al diseño final, rellenando el espacio de 48m2 con unas paredes colindantes, unas zonas inclinadas que dieron dinamismo y movimiento al diseño y la gran torre central.

    En 3 días se llevó a cabo el montaje del stand en el BEC, con un resultado perfecto.

    Somicat SL

    La empresa catalana de fabricación de colchones Somicat nos llamó a 2 semanas de comenzar la feria, y nos propuso diseñar y montar su espacio de exposición de nada más y nada menos que 100m2. La idea estaba clara: un espacio abierto y con buena iluminación. Dicho y hecho, AD Interior Design diseñamos un gran espacio abierto con 4 torretas y una torre, siguiendo los colores de la marca. Al elevar unos puntos concretos, nos permitimos colocar buena iluminación desde arriba, por lo que el producto quedó iluminado a la perfección.

    2
    Diseño final en 3D

    Sin mucho tiempo para diseñar, la opción primera fue la acertada, por lo que nos pusimos manos a la obra con la ejecución y montaje.

    En 2 días se llevó a cabo el montaje del espacio en el BEC.

    img_4865
    Stand con el producto listo para ser expuesto

    …y todo esto fue el trabajo de arquitectura efímera para la feria BilbaoMueble 2017, una buena experiencia en una dura semana de trabajo con unos resultados de sobresaliente.

  • Reforma de vivienda – Piso100

    Una nueva reforma de vivienda en AD.

    Se trata de un piso de unos 50 años de antigüedad, estructura de hormigón en perfectas condiciones y unas vistas a la sierra y la montaña inigualables.

    La vivienda actualmente cuenta con 96,50m2 útiles, repartidos en cocina, salón, alcoba, 3 dormitorios, 2 baños, despensa, pasillo y balcón abierto.

    01-001
    Distribución actual de la vivienda

    Se propone aprovechar más el espacio útil, eliminando zonas como almacén y pasillos, y uniendo la alcoba y el salón, con el fin de crear una zona de salón-comedor amplia. El espacio del balcón, deshabitado en la actualidad, se plantea como un espacio más del interior de la vivienda, creando así un mirador a la sierra. Con todo ello la vivienda pasará a tener casi 100m2 útiles, una gran mejora respecto a los 96,50m2 actuales.

    04-001
    Propuesta de distribución de la vivienda

    La cocina y el baño principal no serán modificados. El baño del dormitorio principal se desplazará un poco, para así coger también el pequeño espacio de despensa y ampliar el dormitorio principal y crear un vestidor.

    Los dormitorios 2 y 3 no serán modificados en su forma, pero si serán renovados al completo tanto suelos, como paredes y techos, así como las ventanas y puertas.

    Todas las ventanas y puertas serán modificadas, será renovado el sistema de calefacción y se aislará la fachada con un relleno de aislamiento en la cámara de aire. El sistema de iluminación y electricidad también será modificado.

    Propuesta de Diseño

    Siguiendo los gustos de los clientes, se plantea utilizar colores claros y gama de cálidos, maderas claras como el roble blanqueado y muy poco mobiliario.

    Fotos de la reforma:

    IMG_0062

    IMG_1090
    Al final, se abrió más el rincón del mirador
    IMG_1114
    Así de buena pinta tiene la vivienda en plena obra

    Fotos finales, resultado del 10:

    image1 (14)
    Panorámica del espacio de salón-comedor
    IMG_1763
    Vista de la entrada a la cocina
    2
    Vista del salón, detalle de la columna revestida con ladrillo blanco

     

    8
    Dormitorio 2
    9
    Entrada a los dormitorios, detalle de las puertas
    93
    Detalle del panelado tipo madera del dormitorio
    96
    Baño principal. Renovado en parte
    IMG (32)
    Baño del dormitorio principal. Renovado al 100%
  • Arquitectura efímera: Diseños de stand

    Estamos diseñando propuestas de stand para la Feria del Hábitat Bilbao Mueble 2017. Nos gusta desarrollar ideas multifuncionales y variadas, con el fin de dar el mejor servicio a cada cliente. Aquí dejamos diseños diferentes con opciones más abiertas y clásicas y opciones más cerradas y modernas.

    17

    La arquitectura efímera es una rama del diseño donde damos prioridad a las formas, los acabados y la creatividad en general; utilizamos diferentes materiales que nos permiten desarrollar cada forma dotando de ligereza al conjunto del proyecto, adaptándonos siempre al presupuesto de cada cliente.

    Pronto publicaremos nuevas propuestas y proyectos efímeros que tenemos en marcha…

  • Stand ExpoBodas 2016 – Arcos de Quejana

    Un espacio abierto, un espacio para usar, con estilo fresco y actual, y que atraiga al personal. Creo que lo hemos conseguido.

    El HotelRestaurante Arcos de Quejana decidió cambiar por completo su imagen del stand de ExpoBodas 2016 del BEC y apostar por una nueva propuesta de espacio expositivo para este año.

    Diseñamos un espacio abierto, pues dada la buenísima ubicación del mismo queríamos que luciese como el que más. Además para que se nos viese bien, una torre central  con el nombre del restaurante en los laterales marcó el diseño del stand.

    14715636_10154611517428524_6064830302942995141_o
    Imagen del stand listo para ExpoBodas 2016.
    14712623_10154611513198524_4613911636450564300_o
    Imagen del stand en acción.

    La decoración estilo vintage, tonos claros, ladrillo blanco, piedra caliza, madera blanca, mobiliario blanco y plantas como el eucalipto mini, unas espigas y paniculata compusieron un espacio de lo más acogedor y actual.

    14633390_10154611516053524_3137710191385078686_o
    Detalle de la escalera de madera hecha a mano y decorada.
    14712528_10154611517978524_6894390446363408354_o
    Detalle de decoración del mostrador con jaulas y farolillos.
    14715102_10154611513698524_6663201673078614033_o
    Detalle de decoración del baúl con luces, regadera y garrafones de vidrio.

    Aquí dejo algunas imágenes del proceso de montaje. Primero diseñamos varios modelos para el cliente, desarrollando después una opción más definitiva. Una vez calculado el coste y detallado el proyecto entero (desde estructura y materiales hasta decoración final) nos pusimos manos a la obra con la construcción:

    propuesta
    Modelo 3D de la propuesta final a desarrollar.
    image1-1
    Vista panorámica de ExpoBodas 2016, con nuestro stand al frente. 

    *Fotografías de Arcos de Quejana y AD Interior Design.

     

  • Diseño campaña «Ruta Comercial»

    Con motivo de la semana del comercio, la Asociación de comerciantes de Amurrio APYMCA, ideó unas rutas comerciales por el municipio.

    El trabajo de AD Interior Design fue desarrollar la idea y crear una propuesta diferente y atractiva para todos los públicos. Diseñamos desde los postes de indicación de la ruta, los postes y letreros de los comercios participantes, y carteles y flyers.

    Nos basamos en la madera de pino radiata, la naturaleza de un material tan noble y de la zona, y su combinación con plantas naturales aromáticas como el romero, la hierbabuena y la lavanda. Todo ello hizo una composición fresca, primaveral y muy interesante.

    Además, diseñamos el logotipo de la «Ruta Comercial por Amurrio 2016»:

    sello ruta comercial copia

    Aquí unas fotos del montaje de señales, postes y paneles:

    image1 (10)
    Señal de la ruta con algunos de los comercios participantes

    Carteles y flyers, a juego con la linea de la campaña:

  • Reforma de apartamento

    Un nuevo proyecto entre manos, esta vez, reforma de vivienda. Un pequeño apartamento de 1950 en Bilbao, estructura de hormigón y no mucha iluminación natural… así que nada mejor que un estilo industrial con ladrillo caravista, hormigón pulido, madera, hierro y un poco de cuero.

    presentación copia
    Presentación de planta, antes y después

    Pronto iremos actualizando con imágenes de obra y resultados finales, de momento dejamos la propuesta de decoración y diseño de proyecto, donde hemos unificado la alcoba y el salón y hemos creado un gran espacio diáfano de 29m2 con zona de comedor y de estar.

     

    plantas photoshop copia
    Planta en estado actual, amueblada alcoba y salón.
    planta final completa
    Planta proyectada, todo amueblado con modificación de entrada y distribución en la cocina.
    dormitorio06
    Diseño de dormitorio, con pared de cabecero de casetones tipo panelado.
    bano
    Propuesta de baño
    comedor
    Propuesta de zona de comedor.
    img_3550
    Vista del dormitorio con el armario empotrado lacado en blanco.
    img_3562
    Vista general del dormitorio.
    img_3556
    Vista de la pared del cabecero, con panelado efecto casetones.
    img_3550
    Vista del armario lacado en blanco.
    img_3565
    Vista del comedor, aún sin lámparas…
    img_3583
    Detalle de la pared de ladrillo caravista y el estuco efecto hormigón.
    image1-6
    Detalle de lámpara colgante del salón.
    image2-3
    Vista del baño, con mueble en cuzco, lavabo en mármol y lámparas en cobre.

    Muy pronto… fotos del mobiliario… ¡No te lo pierdas!

  • Mesa auxiliar by AD-Estudio

    No todo serán proyectos de reforma, decoración, o proyectos efímeros. En AD Interior Design, el objetivo es hacer que los espacios sean mejores, más prácticos, útiles y personales. Por ello, además de diseñar la construcción, la distribución y los acabados, también diseñamos y confeccionamos pequeños muebles.

    IMG_0712
    Mesa auxiliar, diseñada reutilizando dos viejas cajas de almacenaje

    La idea era diseñar una mesita de noche para un dormitorio infantil, tenía que ser ligera, práctica y seguir con el estilo general del dormitorio, en tonos claros, maderas y detalles de estrellas en azul.

    Con una base de madera de pino, se colocaron 4 patas y se unieron ambas cajas. En el interior se utilizó el papel de pared del dormitorio con motivo de elefantes con estrellas para forrar las tapas de fondo por ambas caras, y en el exterior se pintaron unas estrellas en negro con ayuda de una plantilla.

    IMG_0714
    Y… este es el resultado, ¿Qué te parece?

    Si te ha gustado o te interesa, puedes consultarnos directamente:

    ← Volver

    Gracias por tu respuesta. ✨

     

  • Escaparate Azules: primavera, verano, otoño y Navidad.

    En este post podemos ver algunos de los escaparates de «Azules: viste tu vida» comercio de Amurrio de moda infantil y de mujer. Es todo un placer trabajar para este comercio, exponiendo sus prendas y accesorios mediante escaparates temporales.

    El primer escaparate, anunciando la primavera, esa alegre estación en el que las flores florecen y los pájaros cantan. Hartos de tanta flor y tanto verde, optamos por el azul (nombre le la propia tienda), colgando el gran colibrí azul que nos anunciaba la estación del año. Pero no todo quedó ahí, pues, haciendo un guiño a los ángeles de Victoria’s Secret, los pequeños maniquís del escaparate también se pusieron sus alas y volaron entre los pájaros de papiroflexia del stand. Con unos vestidos con estampado de tulipanes rosas, las azules alas destacaron al máximo.

    ¡La primavera quedó inaugurada entre alas y pájaros, y el escaparate ha sido todo un éxito!

    IMG_9419
    Vista lateral del escaparate, en tonos azules, donde destacan las prendas en tonos rosas.
    IMG_9421
    Lema del escaparate: «El colibrí más azul que nunca»
    IMG_9422
    Vista frontal de la composición.
    IMG_9423
    Vista completa del escaparate primaveral.

    El escaparate segundo, terminó la primavera y dio comienzo al verano. Lleno de colorido, pero una vez más, sin flores, pues no nos gustan las obviedades.  Aun así no nos resistimos a crear la jungla en el escaparate, fauna y flora. Un exótico árbol, un mural de hojas como fondo, y para rematar, dos simpáticas cabezas de animales. Los maniquíes, con la ropa elegante y formal de Azules, no podían destacar más con esas cabezas de animales salvajes, que rompían por completo la seriedad de esas ropas, pues como decía el lema:

    «Nacidos para ser Salvajes» – «Basatiak izateko Jaioak» – «Born to be Wild»

    img_5687
    Vista completa del escaparate más salvaje.
    img_5703
    Cabeza de maniquí 1.
    img_5704
    Cabeza de maniquí 2.

    Llegó el otoño, estación triste, estación fría. Colores cálidos y oscuros, hojas secas, setas… pero no, no podíamos caer en lo de siempre, pues el otoño es mucho más. Así, cogiendo los tonos otoñales más arriesgados, y tonos crema, beige o marrón, nos transportamos a las Indias, si si, las de América, aquel territorio habitado por los indígenas (los indios) a los que unos europeos confundieron con asiáticos. Un tippi indio, un tótem, unos sacos y unas plumas; el otoño es anunciado por este escaparate «indio» de lo más divertido, pues a pesar de la temporada del año, con el comeinzo del nuevo curso seguro que…

    «…Este otoño los pasaremos como los indios»

    img_2701
    Vista del escaparate con el tipi.
    img_2707
    Vista completa del escaparate de otoño. ¡Como los indios!
    img_2715
    Vista del tótem (utilizado como perchero) y el escaparate de fondo.
    img_2713
    ¡Este otoño lo pasaremos como los indios!

    ¡Y por fin Navidad!

    Que ganas y que ilusión, esperábamos este escaparate con muchas ganas, pues a pesar de que en AD Interior Design ideas nuevas nos sobran, para este escaparate la idea ya estaba clara:

    «Quiero un escaparate navideño, como los de antes, muchas luces y guirnaldas verdes,                   como una fachada americana»

    Dicho y hecho, la idea de la clienta estaba clara desde el principio, y dejando de lado el estilo más sencillo de AD-estudio, diseñamos este super escaparate de Navidad, como una fachada americana navideña, literalmente.

    1
    Prototipo 3D del diseño
    unnamed-4
    Vista del escaparate, de noche.
    unnamed
    Vista completa de la fachada navideña , con alfombra roja y todo.

    Y como no… teníamos que darle el toque, ese que siempre hace que los más pequeños se enamoren del escaparate de Azules. Por ello, esta vez, y siguiendo con la rama de animales de los escaparates de todo el año 2016, decidimos poner un animal muy de Navidad americana: El reno de Azules.

    unnamed-9

    ¡Esperemos que os haya gustado y os haya recordado a las navidades de vuestra infancia!